Te huur Appartement Lia Doranastraat 17 in Amsterdam
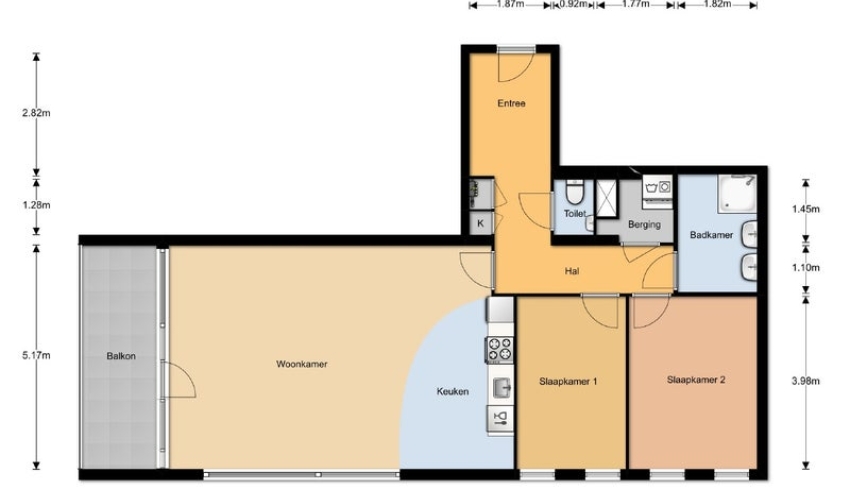
Per direct beschikbaar! Ruim 3-kamerappartement in Amsterdam Buiksloterham. Op een mooie locatie in Amsterdam Buiksloterham, bieden wij dit mooie appartement aan. Het appartement beschikt over 2 slaapkamers, een gezellige woonkamer en een speels ingerichte badkamer. Het appartement is gelegen op de 2e etage in Dok 7 aan de Lia Doranastraat. Het appartement is onderdeel van Dok 7. Het complex beschikt over 30 huurwoningen met verschillende woont...... Als je verder klikt kom je bij een nieuwe pagina met uitgebreide informatie over de huurwoning en met de directe contactgegevens van de beheerder







