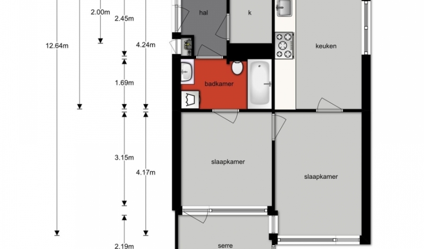
Te Huur 3 Kamer Appartement Heeghtakker In Eindhoven
Object: Direct bij de eigenaar
Huurtermijn: Onbepaalde termijn
Oplevering: Zie foto
Inkomen eis: Nee
Garantiestelling mogelijk: Nee
Borg: 1 Maand
Bemiddeling kosten: Nee
Woningdelers toegestaan: Nee
Huisdieren toegestaan: Afhankelijk van de Eigenaar
Huurtoeslag grens: Ja
Geschikt voor studenten: Afhankelijk van de Eigenaar

