Te huur Appartement Kruidenhof in Leiden
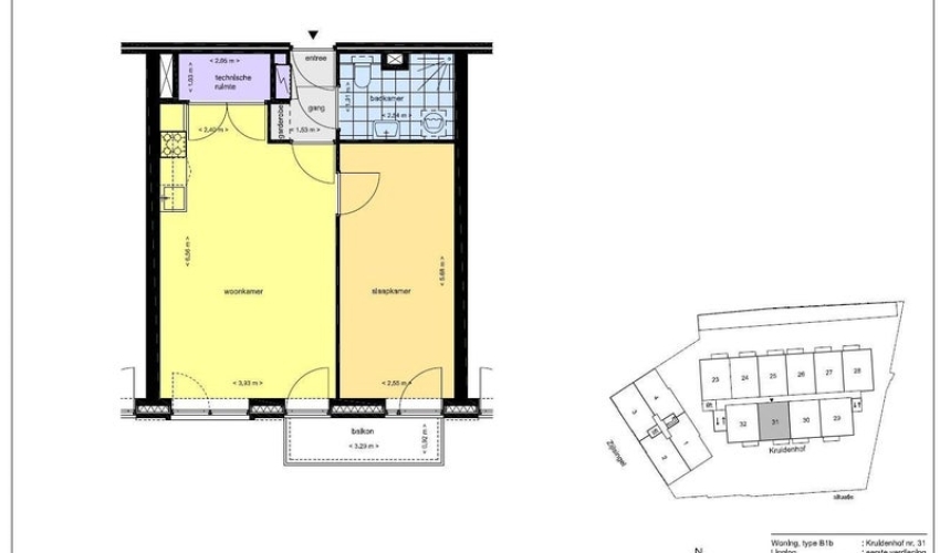
KRUIDENHOF 31, LEIDEN DE FOTO'S ZIJN EEN IMPRESSIE EN AFKOMSTIG VAN EEN ZELFDE WONING IN HET GEBOUW! Op de 1e etage gelegen van het complex DE RUYTER staat dit gestoffeerde 2-kamer (1 slaapkamer) appartement aan de voorzijde van gebouw B met luxe keuken, badkamer en eigen balkon op het zuiden. Het liefst willen we het allemaal. Duurzaam buiten wonen en toch vlakbij de stad. Die wens wordt werkelijkheid bij ”De Ruyter” in Leiden. Wonen aan / buiten de singel maar toch minder dan vijf minut...... Als je verder klikt kom je bij een nieuwe pagina met uitgebreide informatie over de huurwoning en met de directe contactgegevens van de beheerder








