Te huur Appartement Kruidenhof in Leiden
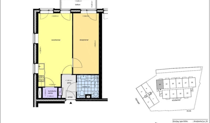
KRUIDENHOF 23, LEIDEN LET OP!! DE FOTO'S ZIJN IMPRESSIE FOTO'S EN GEVEN EEN BEELD VAN HOE DE WONING ERUIT ZIET. Op de 1e etage gelegen van het nieuwbouwcomplex DE RUYTER staat dit gestoffeerde 2-kamer (1 slaapkamer) appartement aan de achterzijde van gebouw B met luxe keuken, badkamer en eigen balkon. Het liefst willen we het allemaal. Duurzaam buiten wonen en toch vlakbij de stad. Die wens wordt werkelijkheid bij ”De Ruyter” in Leiden. Wonen aan / buiten de singel maar toch minder dan vi...... Als je verder klikt kom je bij een nieuwe pagina met uitgebreide informatie over de huurwoning en met de directe contactgegevens van de beheerder









