Te huur Appartement Van Rijsselpad in Leiden
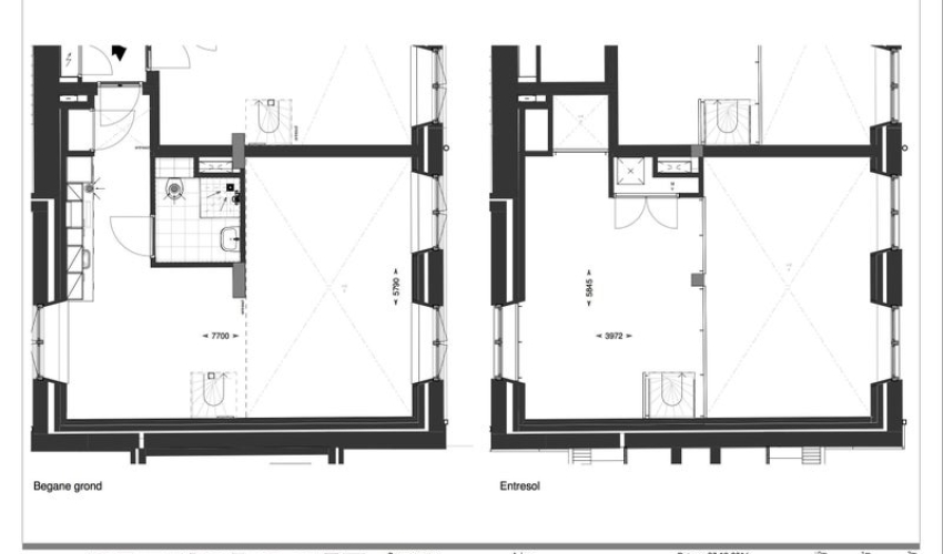
Mooi appartement gelegen in het voormalige Pathologiebouw, waar geneeskundestudenten hun colleges volgden. Dit karakteristieke gebouw is omgebouwd tot 125 eenheden en ligt in een rustige en groene omgeving. Het centraal station is binnen enkele minuten met de fiets te bereiken, het stadscentrum van Leiden is ook binnen enkele minuten met de fiets te bereiken. Wegen, waaronder de A44, zijn gemakkelijk te berijden. Ideaal gelegen ten opzichte van h...... Als je verder klikt kom je bij een nieuwe pagina met uitgebreide informatie over de huurwoning en met de directe contactgegevens van de beheerder









