Te huur Appartement Baan 34 in Rotterdam
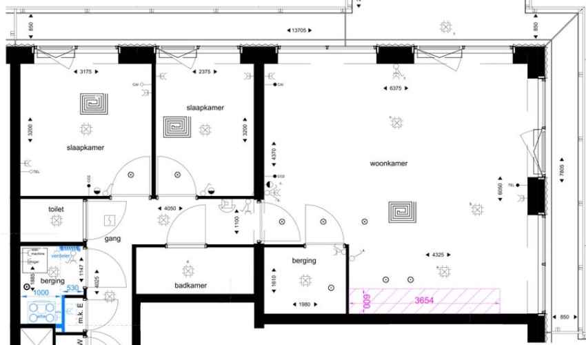
Het mooiste uitzicht van Rotterdam en Nederland – premium 3‑kamer hoekappartement (ca. 80 m²) met XL‑hoekbalkon (ca. 25 m²) · 15e verdieping · A++ · volledig nieuw. Wonen met het mooiste uitzicht van Rotterdam en Nederland. Vanaf de 15e verdieping kijk je vrij over de Erasmusbrug, de Maas, de Leuvehaven, de Euromast en de skyline. Alles in dit appartement is ontworpen om dat premium uitzicht maximaal te beleven, met kamerhoge ramen en een doorlo...... Als je verder klikt kom je bij een nieuwe pagina met uitgebreide informatie over de huurwoning en met de directe contactgegevens van de beheerder









